![]() |
- HKF-S過濾器安裝框單元
- 提交訂單
◆安裝框結構簡單,通用性強,可按所需風量組合于集中通風或空調系統的預過濾
◆使用周期周期長,可以靈活改變,可以根據客戶的要求生產
|
型 號 |
規 格 (mm) |
可裝過濾器規格 (mm) |
|
HKF-S-242401 |
610×610×60 |
595×595×25/22 |
|
HKF-S-122401 |
305×610×60 |
290×595×25/22 |
|
HKF-S-242402 |
610×610×80 |
595×595×46/44 |
|
HKF-S-122402 |
305×610×80 |
290×595×46/44 |
|
HKF-S-242412 |
625×625×345 |
610×610×292 |
|
HKF-S-122412 |
325×625×345 |
305×610×292 |
===性能特點與應用===
◆HKF-H型過濾器安裝框架結構簡單,通用性強,用戶可以按所需風量組合于集中通風或空調系統的過濾段。
◆在HKF-H框架上,可以安裝大多數國際通行尺寸一般通風用過濾器,包括本公司生產的:
HMV-無隔板V型大風量空氣過濾器;
HBM-袋式中效空氣過濾網;
HBP-袋式初效空氣過濾網;
HPP-板式初效空氣過濾網;
HACH-V型活 性炭過濾器;
HACF-平板式活 性炭過濾器;
HACB-箱型活 性炭過濾器;
HACP-折疊式活 性炭過濾器;
HACD-袋式活 性炭過濾器;
HACV-密褶式活 性炭過濾器。


===應用===
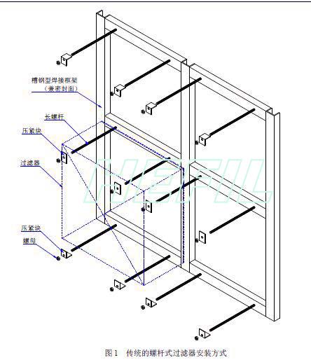
◆HKF型過濾器安裝框架結構簡單,通用性強,用戶可以按所需風量組合于集中通風或空調系統的過濾段。
◆在HKF框架上,可以安裝大多數國際通行尺寸一般通風用過濾器,包括本公司生產的:HMV、HBM、HBP、HPP、HACH、HACF、HACB、HACD、HACV等型號。
![]()







